最好看的2018免费观看在线-最好看的2019中文电影-最好免费观看高清视频免费-最近免费中文字幕大全免费版视频

您好!歡迎光臨烜芯微科技品牌官網!

深圳市烜芯微科技有限公司

ShenZhen XuanXinWei Technoligy Co.,Ltd
二極管、三極管、MOS管、橋堆

全國服務熱線:18923864027

  • 熱門關鍵詞:
  • 橋堆
  • 場效應管
  • 三極管
  • 二極管
  • MOS管防電源反接電路介紹
    • 發布時間:2021-04-03 13:54:05
    • 來源:
    • 閱讀次數:
    MOS管防電源反接電路介紹
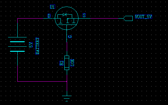
    首先用 PMOS 管畫了一個。
    輸入電源是 5V,當 5V 正常接時,5V 從 U1 的 D 極經過體二極管到達 S 極,因為有一個壓降,S 極電壓約 4.3V,Ugs=-4.3V,所以 MOS 管導通。MOS 管導通之后,D 和 S 之間的導通壓降很小,體二極管也就截止了,所以輸出 VOUT_5V=5V。
    當 5V 電源接反時,此時 G 極電壓為 5V,Ugs>0,所以 PMOS 管不會導通,也就保護了后端電路。
    MOS管防電源反接電路
    PMOS 管防電源反接電路
    使用上述電路,需要注意如下幾點:
    1. 這個電路適用于低壓的場合,MOS 管的導通內阻很小(小的一般是 mΩ級別),所以輸出電壓幾乎輸入電壓。
    2. MOS 管選擇合適的導通電壓,如果輸入電壓很低,MOS 管可能無法導通,而是直接走體二極管,導致輸出電壓更低。
    3. 5V 輸入電源可以加 MLCC 濾波,切記不能加有極性的器件,防止反接時損壞。
    有人會問了,為什么上圖中的 D 和 S 方向和我們平時用的不一樣,下圖是我們經常用的 PMOS 管開關電路。
    MOS管防電源反接電路
    PMOS 管電源開關電路
    上述開關電路的原理是:
    電源正接時,Ugs<0,MOS 管導通,D 極電壓就等于 5V;
    當 5V 電源反接時,S=0,G=5V,Ugs>0,MOS 管是關閉狀態的,看到這里,似乎是合理,也能防止反接。
    但是 S=0 時,PMOS 的體二極管會導通,會將 VOUT_5V 鉗位在 0.7V 左右,那又有人說了,為什么 MOS 管的體二極管會導通,S 和 D 都為 0 啊,那是因為在實際電路中,VOUT_5V 后端可能有很多負載,如果有串電流,體二極管可能就會導通,這就是為什么 S 和 D 需要調換。
    再來用 NMOS 管畫一個。
    MOS管防電源反接電路
    NMOS 管防電源反接電路
    當 5V 電源正接時,MOS 管的 G=5V,D=0V,MOS 管的體二極管會導通,將 S 電壓鉗在 0.7V 左右,需要注意,圖中的 R2 看做是一個負載,并不單單是一個電阻,Ugs>0,所以 MOS 管導通,MOS 管導通之后,因為導通壓降很低,體二極管截止了,S 電壓等于 0V,負載正常工作。
    當 5V 電源反接時,G=0,S=0,Ugs=0,MOS 管是截止狀態,并且體二極管也不通,電路中是沒有電流回路的,保護了后端負載。
    烜芯微專業制造二極管,三極管,MOS管,橋堆等20年,工廠直銷省20%,4000家電路電器生產企業選用,專業的工程師幫您穩定好每一批產品,如果您有遇到什么需要幫助解決的,可以點擊右邊的工程師,或者點擊銷售經理給您精準的報價以及產品介紹
    相關閱讀